NEW BUILDS


Our work includes a range of new build projects, with a strong focus on residential schemes alongside other building types. We define the brief through a clear understanding of the client, the site, and planning constraints. Each project begins with how the building should perform, shaping a design that is practical and well resolved. We test layouts early, establish clear circulation, and define structure, light, and material from the outset.

We develop each proposal through clear massing, proportion, and response to context, ensuring the building sits well within its surroundings while maintaining a strong identity. Attention is given to orientation, natural light, and spatial quality to create efficient and balanced spaces.

Projects move from feasibility through planning and Building Regulations, with coordinated drawing packages and close collaboration with consultants to resolve the design before construction. During the build stage, we guide the process, recommend contractors, and support delivery to maintain clarity and control.


RESIDENTIAL

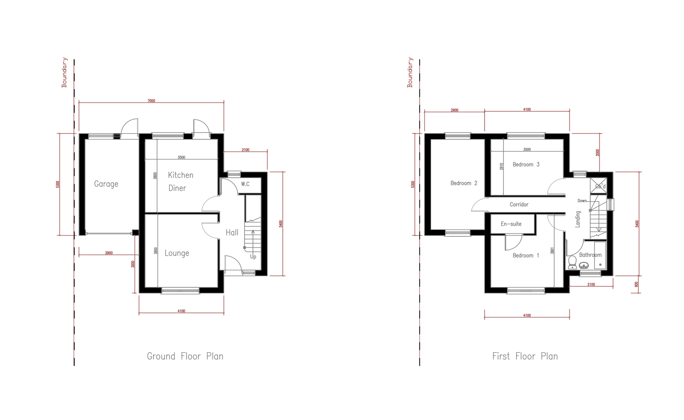
43 Kenneth Rd

Front Elevation

Ground Floor Plan & First Floor Plan Layout

Building In Use 2026

This project involved the design and delivery of a new build, two storey, three bedroom detached house at 43 Kenneth Road, Luton, developed as a high quality family home with a focus on practicality and visual clarity. The layout provides well proportioned bedrooms and generous ground floor living, with a connected lounge, kitchen, and dining arrangement suited to everyday use.

The design responds to the surrounding residential context in scale, form, and relationship to neighbouring properties, while presenting a clear and contemporary identity. A simple pitched roof volume and controlled proportions establish a strong street presence, with brickwork and carefully aligned openings creating a balanced and coherent elevation.

The house sits comfortably within the plot, with access, parking, and boundaries resolved as part of the wider streetscape. The scheme progressed through planning and the discharge of conditions, including materials, drainage, landscaping, and boundary treatments, ensuring the final outcome remained aligned with the approved design and met council requirements.

43 Kenneth Rd

Address:
Luton
Bedfordshire
LU2 0LE

Project Status:
Completed and In Use

Vane Twin Houses

Front & Rear Material Elevations

Street Scene

Ground Floor Plan

Image Coming Soon

This project proposes two new build dwellings within the grounds of the Grade II listed Vane Cottage. The design responds directly to the heritage setting, ensuring the new houses sit comfortably alongside the existing building without competing with it.

The layout is arranged as a mirrored pair, creating a balanced composition across the site. Each house is set over two storeys with an additional loft level, with ground floor living spaces opening to the garden and bedrooms located above.

A key challenge was controlling scale and presence so the pair did not overpower Vane Cottage or take attention away from it. The design draws from the cottage in its proportions and materiality, allowing the new houses to reflect the character of the existing building while remaining clearly defined as contemporary additions.

The project required careful consideration of conservation constraints, including the protection of existing trees, which influenced the positioning and layout of the buildings.

The design also allows for future extension, with the layout and form planned to accommodate further development when required, without disrupting the overall composition.

The result is a pair of dwellings that sit quietly within the site, reinforcing the character of Vane Cottage while adding to the overall setting.

Vane Twin Houses

Address:
Park Road North,
Houghton Regis.
LU5 5LA

Project Status:
Planning Application Approved